專注隔熱型材、幕墻建筑型材、工業(yè)型材的生產企業(yè)
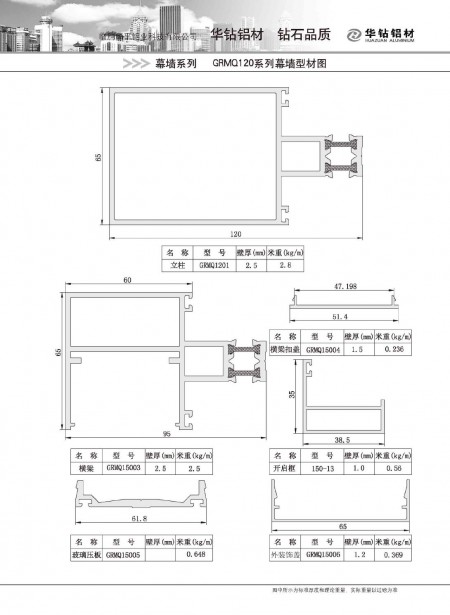
GRMQ120系列幕墻型材圖
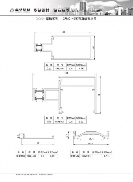
GRMQ140系列幕墻型材圖
GRMQ140系列幕墻型材圖
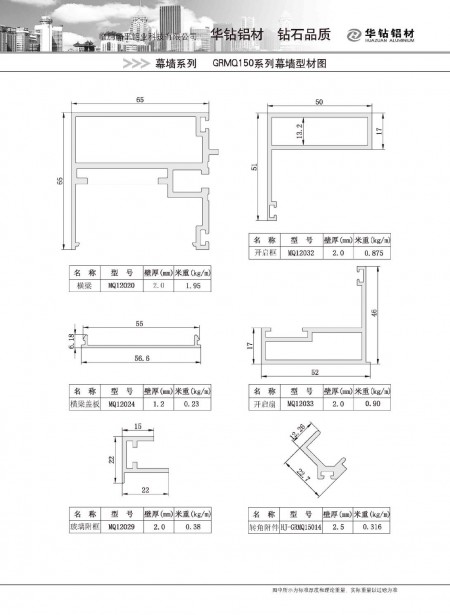
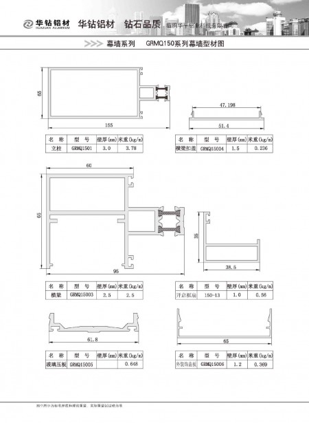
GRMQ150系列幕墻型材圖
GRMQ150系列幕墻型材圖
GRMQ170系列幕墻型材圖
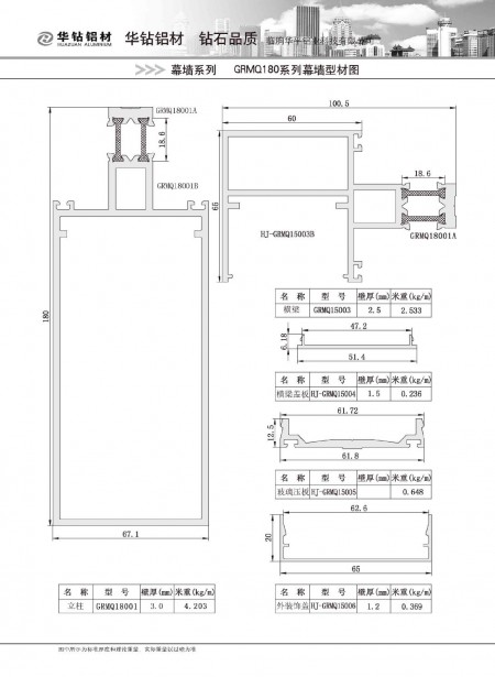
GRMQ180系列明框幕墻結構圖
GRMQ180系列幕墻型材圖
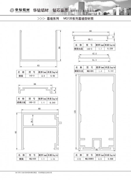
MQ120系列幕墻型材圖
MQ120系列幕墻型材圖
MQ120系列幕墻型材圖
MQ120系列幕墻型材圖
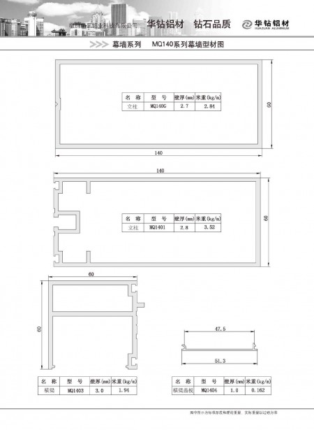
MQ140系列幕墻型材圖
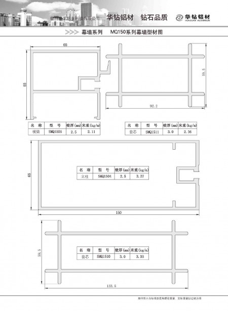
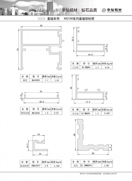
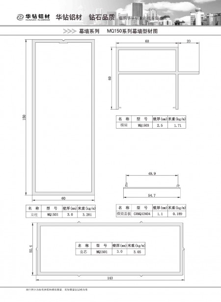
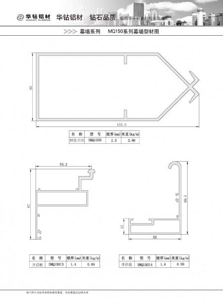
MQ150系列幕墻型材圖
MQ150系列幕墻型材圖
MQ150系列幕墻型材圖
MQ150系列幕墻型材圖
MQ150系列幕墻型材圖
幕墻系列型材圖
幕墻系列型材圖